Our Homes
Locations
Prequalify
Special Offers
FAQs
Contact
More
Single Section
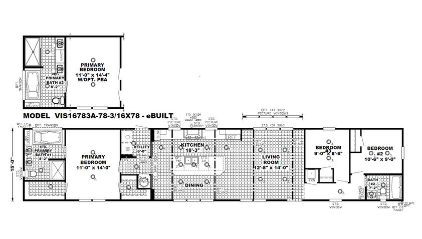
Bedrooms
3
Bathrooms
2
Sq. Ft.
1170
Specs
16x80