Our Homes
Locations
Prequalify
Special Offers
FAQs
Contact
More
Multi-Section
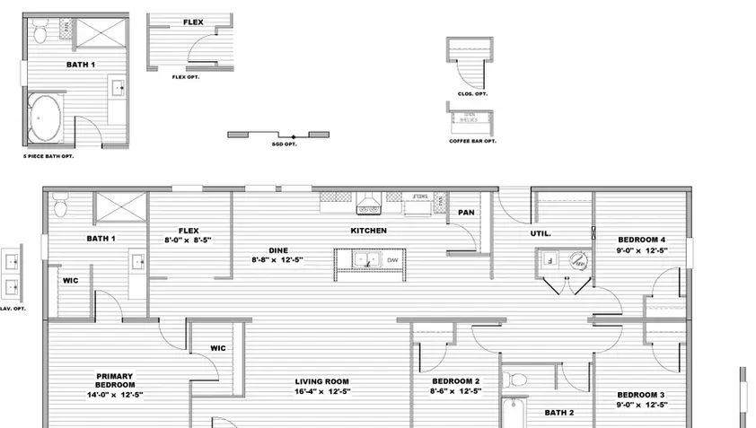
Bedrooms
4
Bathrooms
2
Sq. Ft.
1739
Specs
28x68