Our Homes
Locations
Prequalify
Special Offers
FAQs
Contact
More
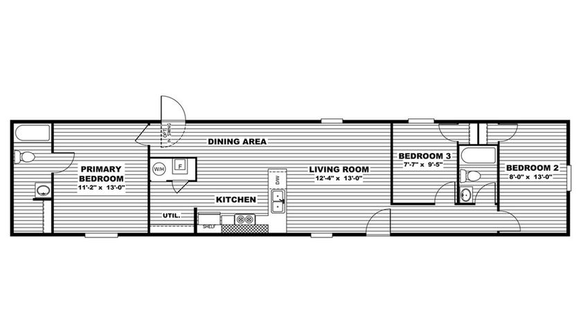
Single Section
Bedrooms
3
Bathrooms
2
Sq. Ft.
902
Specs
14x70